toblergmür

News

Projekte

LetzigartenIn Planung

Zuschlag für Wohnzeile
Standort: Zürich-Altstetten ZH
Auftragsform: Studienauftrag auf Einladung
Programm: 390 Wohnungen mit vielseitiger Erdgeschossnutzung
Auftraggebende: Halter AG Gesamtleistungen
Termine: Studienauftrag 2023, Planung ab 2023
Landschaftsarchitektur: Uniola Landschaftsarchitektur
Projektteam: Samuel Waehry, Gabriel Gmür, Samuel Tobler

Kantonsschule ReussbühlWettbewerb

5. PREIS
Standort: Reussbühl LU
Auftragsform: offener Projektwettbewerb
Programm: Erweiterungsbau für 18 Klassen sowie eine zusätzliche Sportanlage
Auftraggebende: Finanzdepartement des Kantons Luzern
Termine: Studienauftrag 2022
Landschaftsarchitektur: Laboratorium KLG, Zürich

LindentalIn Planung

1. PREIS
Standort: St. Gallen SG
Auftragsform: Studienauftrag im Einladungsverfahren
Programm: Wohn- und Gewerbeüberbauung mit 217 Wohneinheiten und 760 m2 Gemeinschafts- und Gewerbeflächen
Auftraggebende: Swiss Life Asset Management AG
Termine: Studienauftag 2021, geplante Fertigstellung 2025
Projektteam: Lorna Fuchs, Lukas Graf, Seraina Bollinger, Gabriel Gmür, Samuel Tobler
Landschaftsarchitektur: Henning Larsen

Triemli 4Gebaut

1. PREIS
Standort: Zürich ZH
Auftragsform: Projektwettbewerb im Einladungsverfahren
Programm: Genossenschaftliches Wohnhaus mit 17 Wohnungen, einer Gewerbeeinheit sowie vielfältigen Gemeinschaftsflächen
Auftraggebende: Baugenossenschaft Rotach, Zürich
Termine: Wettbewerb 2019, geplante Fertigstellung 2024
Projektteam: Samuel Waehry, Gabriel Gmür, Samuel Tobler
Landschaftsarchitektur: LINEA landscape architecture, Zürich

Chesa StiefelGebaut

Standort: Fex-Crasta GR
Chesa Stiefel
Auftragsform: Direktauftrag
Auftraggebende: privat
Termine: Fertigstellung 2019
Projektteam: Gabriel Gmür
Zusammenarbeit mit Atelier Jasna Strukelj Gmür

StüdliwegWettbewerb

2. PREIS
Standort: Zürich ZH
Auftragsform: selektiver Projektwettbewerb
Programm: Genossenschaftliche Wohnüberbauung mit ca. 160 Wohneinheiten und ca. 1'000 m2 Gewerbe- und Gemeinschaftsflächen
Auftraggebende: GBMZ
Termine: Wettbewerb 2018
Landschaftsarchitektur: Lorenz Eugster Landschaftsarchitektur, Zürich
Zusammenarbeit mit Ralf Figi, Zürich

KocharealWettbewerb

2. PREIS
Standort: Zürich ZH
Auftragsform: selektiver Projektwettbewerb
Programm: Genossenschaftliche Wohn- und Gewerbeüberbauung mit ca. 160 Wohneinheiten sowie ca. 4'000 m2 Gemeinschafts-, Gewerbe- und Dienstleisungsnutzungen
Auftraggebende: Genossenschaft Kraftwerk 1, Zürich
Termine: Wettbewerb 2019
Landschaftsarchitektur: Ganz Landschaftsarchitek*innen, Zürich
Zusammenarbeit mit Stücheli Pestalozzi Schiratzki Architekten, Zürich

Indu 4In Planung

1. Preis Gebäudetypologie
Standort: Luzern LU
Auftragsform: Projektwettbewerb im Einladungsverfahren
Programm Realisierung: Wohnhaus in Holzbauweise mit 21 Wohneinheiten, Gemeinschafts- und Gewerbeflächen
Auftraggebende: GWI Luzern
Termine: Wettbewerb 2018, geplante Fertigstellung 2024
Projektteam: Elias Vollmeier, Gabriel Gmür, Samuel Tobler

Indu 6In Planung

1. Preis Gebäudetypologie
Standort: Luzern LU
Auftragsform: Projektwettbewerb im Einladungsverfahren
Programm Realisierung: Wohnhaus in Holzbauweise mit 19 Wohneinheiten, Gemeinschafts- und Gewerbeflächen
Auftraggebende: WOGENO Luzern
Termine: Wettbewerb 2018, geplante Fertigstellung 2024
Projektteam: Elias Vollmeier, Gabriel Gmür, Samuel Tobler

Aachweg In Planung

1. PREIS
Standort: Egnach TG
Auftragsform: Studienauftrag
Programm: 28 Eigentumswohnungen, 18 Mietwohnungen
Auftraggebende: HRS Real Estate AG
Termine: Studienauftrag 2017, Fertigstellung 2024
Projektteam: Pablo Vuillemin, Gabriel Gmür, Samuel Tobler
Landschaftsarchitektur: LINEA landscape architecture, Zürich

SommerhausGebaut

Standort: Buochs NW
Auftragsform: Direktauftrag
Auftraggebende: privat
Termine: Fertigstellung 2015
Projektteam: Samuel Tobler

BundesplatzIn Planung

1. PREIS
Standort: Luzern LU
Auftragsform: eingeladener Projektwettbewerb
Programm: Wohn- und Gewerbeüberbauung mit ca. 16'000 m2 GF
Auftraggebende: HRS Investment AG / Schweizerische Mobiliar
Termine: Wettbewerb 2015
Landschaftsarchitektur: Albiez de Tomasi Landschaftsarchitekten, Zürich
Zusammenarbeit mit Steib & Geschwentner Architekten AG, Zürich

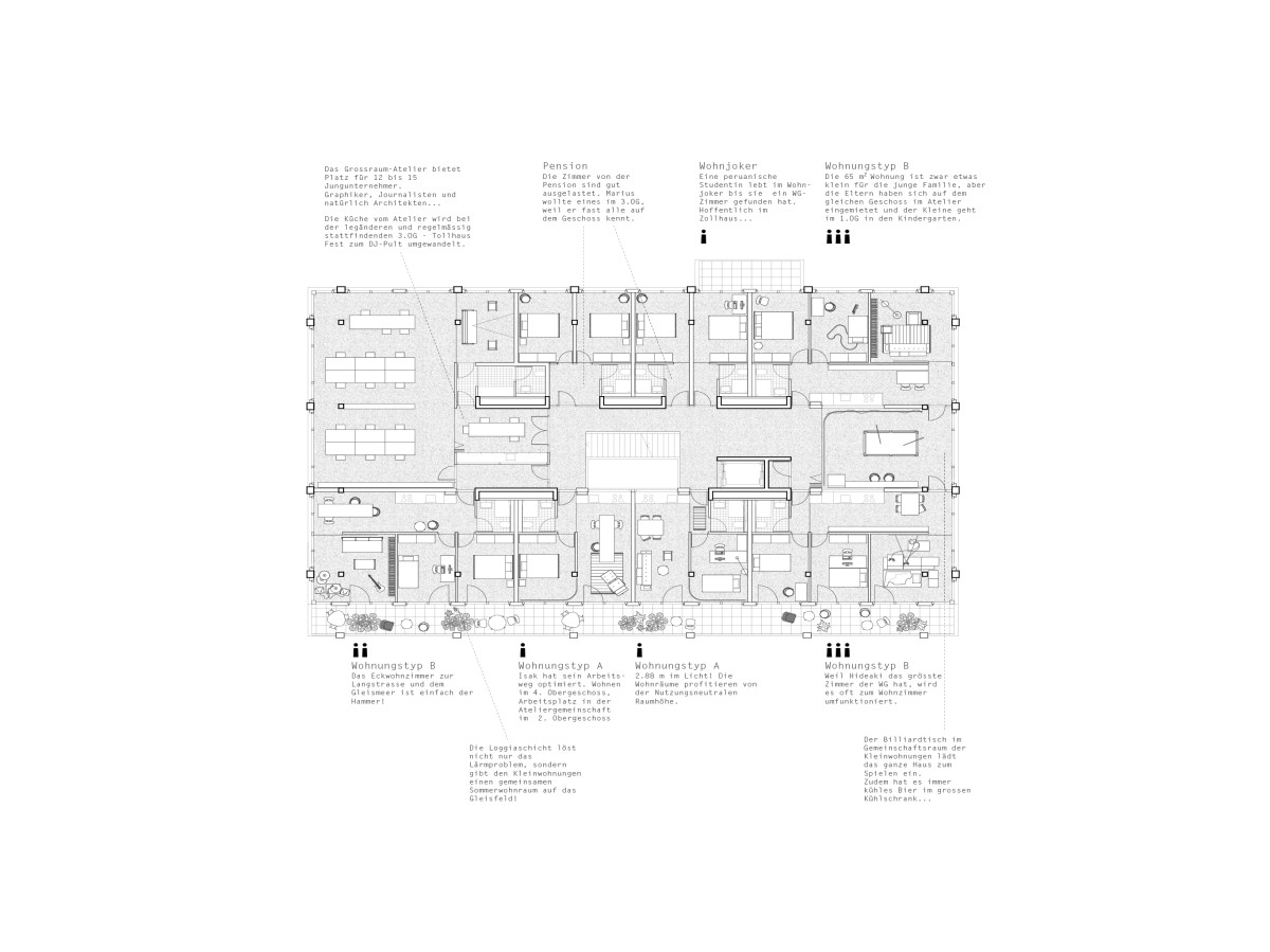
ZollhausWettbewerb

2. PREIS
Standort: Zürich ZH
Auftragsform: offener Projektwettbewerb
Programm: Wohn- und Gewerbeüberbauung mit ca. 9'000 m2 HNF
Auftraggebende: Genossenschaft Kalkbreite, Zürich
Termine: Wettbewerb 2015
Zusammenarbeit mit Gian Trachsler, Zürich

Werkliste

2024St. Gallen

051
Heerbrugg, St. Gallen
Machbarkeitsstudie

050
Stephanshorn, St. Gallen
Studienauftrag
engere Wahl

2023Regensdorf, Zürich, Chur

049
Riedt2, Regensdorf
Ideenwettbewerb
engere Wahl

048
Riethüsli, St. Gallen
anonymer Studienauftrag
2. Preis

045
BFG-Areal, Zürich
Studienauftrag auf Einladung
Empfehlung zur Weiterbearbeitung "Baufeld Zeile"
In Bearbeitung

043
Rheinfels II, Chur
Innenausbau einer Filiale Bäckerei Merz
Direktauftrag
In Bearbeitung

041
Mühlbach, Chur
Innenausbau einer Filiale Bäckerei Merz im Bahnhof Chur
Direktauftrag
In Bearbeitung

2022Zürich, Chur, Luzern

044
Wohnhäuser Breitensteinstrasse, Zürich
Planerwahlverfahren

042
Wiesental, Chur
Renovation und Innenausbau einer Filiale Bäckerei Merz
Direktauftrag
Fertigstellung 2022

040
Erweiterung Kantonsschule Reussbühl, Luzern
Projektwettbewerb im offenen Verfahren
5. PREIS

2021St.Gallen

039
Überbauung Areal Lindental, St.Gallen
Studienauftrag auf Einladung
1. PREIS
In Bearbeitung

2020Fällanden, Meggen

038
Überbauung "Im Haufland", Fällanden
Studienauftrag auf Einladung
engere Auswahl

037
Mühleweiher, Meggen
Testplanung
Empfehlung zur Weiterbearbeitung

2019 Luzern, Zürich, Kriens

036
Bell-Areal, Kriens
Studienauftrag, Konzeptphase

035
Geschäfts- und Wohnhaus Pilatusplatz, Luzern
Projektwettbewerb für Investoren und Architekten
Zusammenarbeit mit HVDM architects & cityplanners

034
Ersatzneubau Buchholzstrasse, Zürich
Studienauftrag auf Einladung
engere Auswahl

033
Ersatzneubau Triemli 4, Zürich
Genossenschaftlicher Wohnungsbau
Projektwettbewerb auf Einladung
1. PREIS
In Bearbeitung

032
Lischenmoos Baufels A1, Gümligen
Projektwettbewerb für ein Hochhaus

031
Eichwald, Luzern
Genossenschaftliches Wohn- und Gewerbegebäude
Projektwettbewerb mit Präqualifikation
Zusammenarbeit mit HVDM architects & cityplanners
2. PREIS

030
Ersatzneubau Eibenstrasse, Zürich
Studienauftrag auf Einladung
engere Auswahl

2018Peking, Zürich, Aarbon

029
Stöcklin-Areal, Aesch/Reinach
Architektenwahlverfahren in Konkurrenz

028
Ersatzneubau Siedlung 6 "Stüdli", Zürich
Projektwettbewerb im selektiven Verfahren
Genossenschaftlicher Wohnungsbau
Zusammenarbeit mit Ralf Figi, Zürich
2. PREIS

027
Koch-Areal, Zürich
Genossenschaftliches Wohnhaus mit Gewerbe, Kraftwerk 1
Wettbewerb im selektiven Verfahren
Zusammenarbeit mit Stücheli Pestalozzi Schiratzki Architekten, Zürich
2. PREIS

026
Saurer Areal Baufeld B, Aarbon
Studie

025
Botschaft Peking
Projektwettbewerb im offenen Verfahren

024
Ersatzneubau für die Baugewerblich Berufsschule Zürich
Projektwettbewerb im offenen Verfahren
Zusammenarbeit mit Seraina Merz Architektur, Zürich

2017Luzern, Zürich, Egnach

023
Wohnüberbauung Aachweg, Egnach
Studienauftrag auf Einladung
1. PREIS
In Bearbeitung

022
Ersatzneubau Wohnsiedlung Hardau I, Zürich
Projektwettbewerb im offenen Verfahren
3. Wertungsrundgang

021
Areal Industriestrasse, Luzern
Genossenschaftlicher Wohnungsbau
Projektwettbewerb auf Einladung in zwei Stufen
3. PREIS, Sieger in der Disziplin Gebäudetyologie
In Bearbeitung

020
Neustadtstrasse, Luzern
Studie

2016Buochs, Zürich, Fex-Crasta

019
Ersatzneubau Luegislandstrasse, Zürich
Studienauftrag auf Einladung
engere Auswahl

017
Wendelmatte, Greppen
Studienauftrag
Zusammenarbeit mit Lengacher Emmenegger Architekten

016
Stadtkaserne Frauenfeld und Oberes Mätteli
städtebaulicher Ideenwettbewerb mit Präqualifikation
4. PREIS

015
Chesa Stiefel, Fex-Crasta
Küchenrenovation eines denkmalgeschützen Engadinerhauses
Fertigstellung 2018

014
Neugestaltung Bahnhofsstrasse und Theaterplatz, Luzern
Projektwettbewerb im offenen Verfahren, für Landschaftsarchitekten mit Architekten und Verkehrsplanern

013
Umbau Blüemlisalpstrasse, Zürich
Fertigstellung 2017

012
Sommerhaus am Vierwaldstättersee, Buochs
Umbau der bestehenden Garage zu gedämmtem Wohnraum mit Bad

2015Luzern, Zürich

010
Bundesplatz Süd, Luzern
Projektwettberb auf Einladung
Zusammenarbeit mit Steib & Geschwentner Architekten
1. PREIS
In Bearbeitung

009
Alterszentrum und Wohnsiedlung Eichrain, Zürich
Projektwettbewerb im offenen Verfahren

007
Neubau Quartierzentrum Wesemlin, Luzern
Ideen- und Projektwettbewerb
In Zusammenarbeit mit Eugen Mugglin, Luzern

005
Neubau Wohn- und Gewerbeüberbauung Zollhaus, Zürich
Projektwettbewerb im offenen Verfahren
Zusammenarbeit mit Gian Trachsler, Zürich
2. PREIS

2014St.Moritz, Sissach, Bern

004
Ersatzneubau Schulhaus Tannenbrunn, Sissach
Projektwettbewerb im offenen Verfahren

002
Wohnüberbauung Eymatt, Bern
Gesamtleistungswettbewerb im selektiven Verfahren

001
Neubau Kindertagesstätte, St.Moritz
Projektwettbewerb

Team

Seraina BollingerEmail

Gabriel GmürEmail

Lukas GrafEmail

Rosa HeerEmail

Chiara PestoniEmail

Samuel ToblerEmail

Elias VollmeierEmail

Pablo VuilleminEmail

Samuel WaehryEmail

Ehemalige

Manuel Blum
Pierre Bögli
Fabian Dos Santos
Lorna Fuchs
David Hagberg
Majella Hauri
Sabina Kickhofel
Basil Schürch
Cyril Queyrau
Iliana Traxler
Julia Werlberger
Justinas Zuklys

Jobs

Praktikum

Für die Mitarbeit an unterschiedlichen Projekten in allen Projektphasen suchen wir ab sofort oder nach Vereinbarung Praktikant*innen für eine Mindestdauer von sechs Monaten.
Wir freuen uns über Dein Portfolio per Post oder an info@toblergmuer.ch

Kontakt


toblergmür GmbH

Röschibachstrasse 22

CH-8037 Zürich

+41 44 521 50 97

Email


toblergmür GmbH

Landschaustrasse 27

CH-6006 Luzern

+41 44 521 50 97

Email

toblergmür